Lukas Scheck
Markus Brunner
Mark Kaiser
Pablo Palomar Jiménez
Anja Spirig
Ramona Fäsi
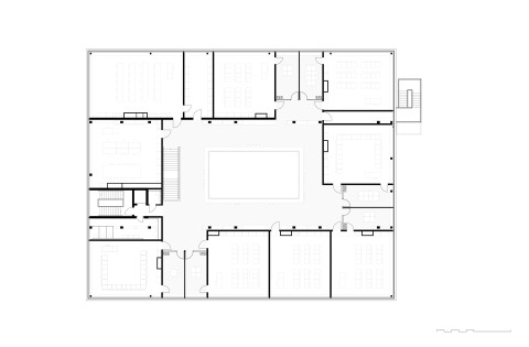
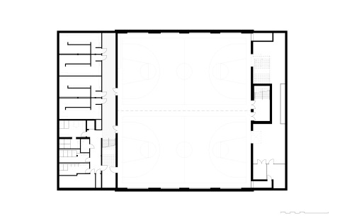
Die Gebäude der Schulanlage Dübendorf-Schwerzenbach sind in der Situation schachbrettartig angeordnet. Der Erweiterungsbau im Zentrum der Anlage ist als einfacher Körper konzipiert und reiht sich auf selbstverständliche Weise in dieses System ein. Das Schulhaus und die Turnhalle sind in einem kompakten Volumen zusammengefasst, damit ihr Fussabdruck möglichst klein bleibt und zur Strasse hin ein attraktiver Vorplatz entsteht. Die Sporthalle ist zu zwei Dritteln im Boden versenkt und wird über ein Oblichtband dreiseitig belichtet. Sie kann neben dem Sportbetrieb auch für Veranstaltungen mit bis zu 600 Personen genutzt werden. Über der Sporthalle liegt das Schulhaus; von der Eingangshalle aus führt eine Treppe in die zweigeschossige Halle hoch, welche das Herzstück der Anlage bildet. Sie ist anregender Begegnungsraum, Lernzone und erschliesst alle Unterrichtsräume. Auf der oberen Etage rahmt ein umlaufendes Arbeitssims das Atrium. Ein erhöhtes Oberlicht leitet Tageslicht in die Gebäudemitte und kann im Sommer für die Nachtauskühlung genutzt werden. Die filigranen Fachwerkträger, welche die Spannweite über der Doppelturnhalle aufnehmen, sind sichtbar in die zwei Schulgeschosse eingebunden. Durch die Stahlbaukonstruktion kann eine grosse gestalterische Leichtigkeit und eine maximale Nutzungsflexibilität erreicht werden.


















